THE PARC FACTORY
Close
Project Details
 
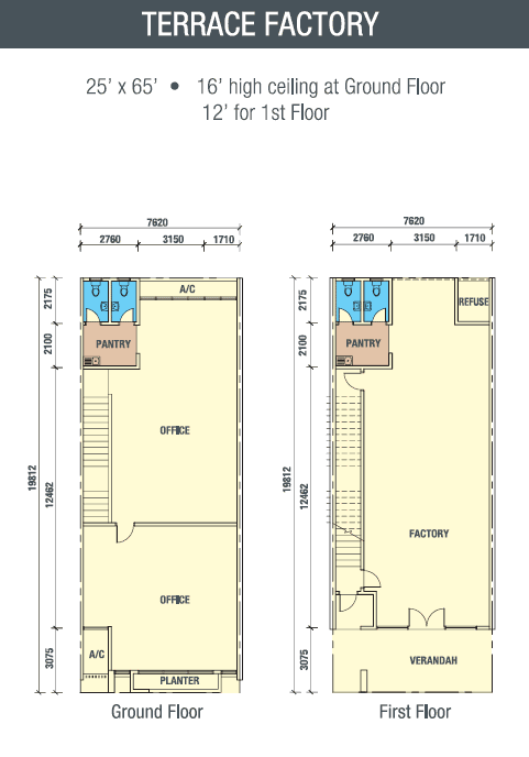
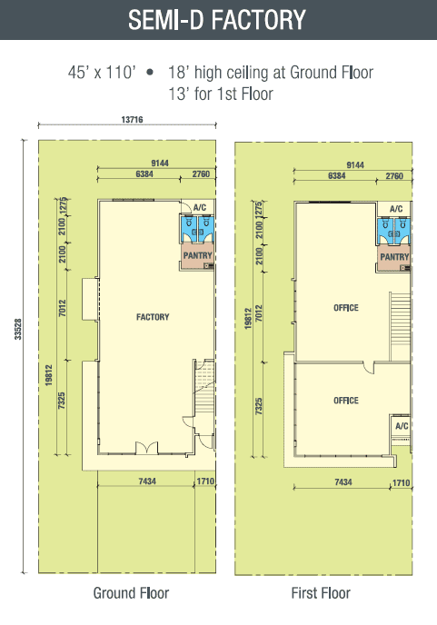
The Parc Factory Outlets is Wangsa Maju's 1st Factory Outlets which consist of 86 units of Terrace Factories and 10 units of Semi-Detached Factories that comes with two spacious design; i.e. 25' x 65' for a 2 storey Terrace Factory and 45' x 110' for a 2 Storey Semi-D Factory. The response toward The Parc Factory Outlets has been very positive, with a 40% take-up rate during the pre-launch in March 2009. The project is now completed with CCC.

Date completed : 2013

Close
Video Gallery
Close
Download Brochure